Trafographie-Startseite
Homepage der Elvira von Seydlitz   
Die schönsten Trafohäuschen Europas
www.trafoturm.eu
  Startseite  
      Europa       
 Deutschland  
   Best of    
  Index A-Z  
    Museen    
 Umfunktionierung  
Trafo-Friedhof
 Trafo & Kunst
Denkmalschutz
 Naturschutz  
 Links & Literatur 
 Über Trafos  
   Über uns   
  Impressum / Datenschutz  
Umspannstation Leipheim wird zur Villa Ampere.
Home > Europa > Deutschland > Bayern > Bayerisch-Schwaben > Landkreis Günzburg > Leipheim

Die Villa Ampere in Leipheim

Diese Webseite wurde mit Stand Mai 2016 stillgelegt [ weiterlesen ]

Der Trafoturm in der Wissmannstraße wurde 2014 zum Entspannungsturm umgebaut

Umspannstation II Leipheim Wissmannstrasse 2 Umspannstation II Leipheim Wissmannstrasse 1 Umspannstation II Leipheim Wissmannstrasse 3 Umspannstation II Leipheim Wissmannstrasse 4 Umspannstation II Leipheim Wissmannstrasse 5 Umspannstation II Leipheim Wissmannstrasse 7 Bauplan Umspannstation II Leipheim Wissmannstrasse
Die Umspannstation Leipheim Wissmannstraße von 1954
Fotos: Hans Zachai, 2011/2013 und Stephan Ruch/swisstrafos.ch, 2012 (2. Bild von links)

Dieser Trafoturm als Modell im Maßstab 1:160 (Spurgröße N) für 3d-Druck

Die 'Umspannstation II Leipheim' (so die offizielle Stationsbezeichnung) in der Wissmannstraße 9 wurde 1954 von der Mittelschwäbischen Überlandzentrale AG Giengen (MÜAG) erbaut und bis zum Jahr 2013 von den EnBW ODR als Verteilerstation für das Gebiet Leipheim Kohlerstraße, Wissmannstraße und Herrenbreite verwendet. Im Laufe der Zeit verlor die Station durch die Verlegung von Erdkabeln ihre ursprüngliche Funktion.
Auf dem Foto ganz links vom 28. Dezember 2011 ist der Trafo bereits vom Freileitungsnetz abgehängt. An der Fassade sind noch die Haken der ehemaligen Niederspannungsstromkreis-Armaturen zu erkennen. Hier waren früher Isoliereier der Epoche 2 montiert. Auf dem zweiten Bild von links (August 2012) ist noch ein letztes Schwedenkabel zu sehen. Auf den Fotos rechts (vom 24. Oktober und 14. Dezember 2013) war die Station offensichtlich bereits ganz stillgelegt und wartete auf den Abriss - bis mit Hans Zachai eine ganz neue Geschichte ihren Anfang nahm.
Wie wir von einem älteren Anwohner erfahren konnten, befand sich an der gleichen Stelle wie heute bereits ein kleinerer Trafoturm, der 1953 durch einen Blitzschlag zerstört wurde. Der damals zuständige Netzbetreiber MÜAG beschloss dann im Jahr 1954 den Neubau in der heutigen Form.
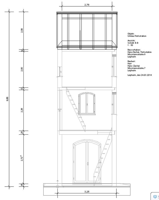
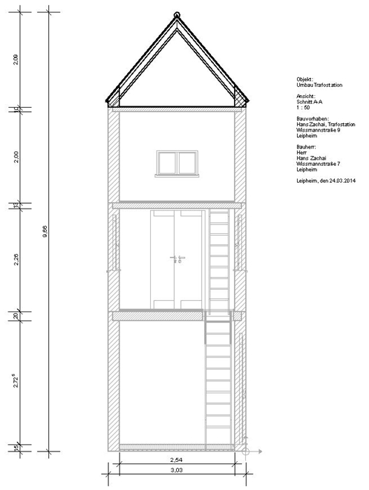
Aus dem uns vorliegenden Original-Bauplan ist die solide Bauweise zu erkennen. Ein tiefes stabiles Beton-Fundament dient als Träger für die mit Hohlraumziegeln gemauerten Außenwände. Diese Bauweise war bis in die 1980er Jahre üblich, danach wurden hauptsächlich Trafostationen in Fertigbauweise erstellt. Im Erdgeschossboden ist eine Aussparung in der Größe von 200 x 90 cm, ca. 30 cm tief. Auf dieser Aussparung wurde mit Eisenträgern der Trafo befestigt. Diese Aussparung war zum Auffangen von etwa austretendem Trafoöl, auch zur Unterlüftung des Trafos notwendig. Neuerdings werden in moderneren Stationen solche Gruben sogar mit Kunststoffbeschichtung ausgekleidet um Dichtheit zu erreichen.
Zwei Hochspannungsleitungen (Mittelspannung, 20.000 Volt) führten unterirdisch in den Turm (die Leitungen sind heute noch hinter einem kleinen Schaukasten im EG zu sehen). Durch dicke Eisen- (ca. 6 cm Durchmesser) und Betonrohre in den Außenwänden, sowie durch runde Löcher in der EG-Decke wurden dann die vom Trafo in die haushaltsübliche Spannung (Niederspannung) umgewandelten Leitungen nach oben geführt. Von einem ca. 100 cm hohen Ringanker und einer Massivdecke als oberer Mauerabschluss, die die ganzen Spannkräfte aufnehmen mussten, erfolgte dann die Verteilung durch Freileitungen an die umliegenden Stromabnehmer. Die Freileitungen waren an sogenannten Schweinshaken gespannt und an Eierisolatoren (Isoliereiern) befestigt. Ein steiles Satteldach, eingedeckt mit Biberschwänzen, bildet den Abschluss des Gebäudes.
Der Trafo selbst hatte ein Gewicht von 1,8 Tonnen und eine Leistung von 400 KVA (Kilo-Volt-Ampere).
Die Abbildung ganz rechts zeigt den Bauplan vom 2. März 1954. Die Dokumentation solch alter Konstruktionszeichnungen ist für uns ein seltener Glücksfall, siehe auch unsere Themenseite Innenansichten und Konstruktion von Turmstationen.


Plaene Villa Ampere 3 Umbau Villa Ampere 19 Logo der Villa Ampere Umbau Villa Ampere 39 Umbau Villa Ampere 77

Die Umspannstation Leipheim wird 2014 zur Villa Ampere
Logo: Ines Zachai, Modell und Fotos: Hans Zachai
Hans Zachai, Nachbar des Trafohäuschens, bewahrte die Turmstation vor dem Abriss und baute den "ent-spannten" Trafoturm mit einer unglaublichen Begeisterung in unermüdlicher Eigenarbeit und mit der Hilfe vieler Verwandter und Freunde zu einem "Entspannungsturm" um, einem wirklichen Prachtstück in unserer Sondersammlung Umfunktionierung von Trafohäuschen.
Die Villa Ampere hat eine eigene Homepage: Kreativ-Meeting-Point Villa Ampere
- > Pressestimmen und Links zur Villa Ampere


Turmherr Zachai hat für uns die ganze Geschichte aufgeschrieben und fotografisch dokumentiert

Hans Zachai: Villa Ampere - Die ausführliche Geschichte als PDF

Im folgenden Fotos und Textauszüge von der Planung bis zur Fertigstellung:

Schon 2007, als wir auf dem Nachbargrundstück ein Wohnhaus bauten, hatten wir darauf spekuliert, irgendwann das Gebäude zu erwerben. Damals wurde mit der zuständigen Bezirksstelle Langenau vereinbart, dass wir das Grundstück pflegen und dafür die angrenzenden Zäune entfernen um das Gelände als zusätzlichen Zugang zu unserem Garten verwenden zu können.
Als wir dann Ende 2013 von der Stadt Leipheim vom bevorstehenden Abriss der Trafostation erfuhren, haben wir der EnBW ODR unser Interesse am Kauf mitgeteilt. Die EnBW hat uns ein sehr faires Angebot für das Grundstück mit dem Gebäude unterbreitet, schließlich konnten ja die Abrisskosten gespart werden. Damit die Trafostation für die Nachwelt erhalten bleibt, haben wir uns zum Kauf entschlossen. Noch vor dem Notartermin wurden bereits Pläne entworfen, wieder verworfen und korrigiert.
Bedingungen waren:
  1. Der Charakter des Gebäudes sollte erhalten werden
  2. Möglichst viel von der alten Substanz beibehalten
  3. Die Renovierungskosten müssen im Rahmen bleiben (veranschlagt wurden ca. 5000.- Euro)
  4. Soweit wie möglich alle Arbeiten in Eigenleistung durchführen
Entstanden ist dann die Idee, im Erdgeschoss einen Lagerraum für Gartengeräte, im 1. OG ein kleines "Bierstüberl" und durch den Einbau einer Zwischendecke im 2. OG einen Ruheraum einzurichten. Ein Glücksfall war für uns der bevorstehende Abriss von Kasernengebäuden auf dem ehemaligen Fliegerhorst Leipheim. Aus diesen Gebäuden konnten wir sehr kostengünstig erwerben: eine wunderschöne doppelflügelige Eingangstür mit Segmentbogen (10.- Euro), 1 Balkontür, 5 Kunststofffenster mit Segmentbogen, Deckenleuchten, Elektroverteiler und Pflastersteine, die nicht mehr benötigt wurden. Somit war der Grundstein für die Renovierung geschaffen.

Plaene Villa Ampere 1 Plaene Villa Ampere 2 Plaene Villa Ampere 3 Plaene Villa Ampere 4 Plaene Villa Ampere 5 Plaene Villa Ampere 6 Plaene Villa Ampere 7
Plaene Villa Ampere 8 Plaene Villa Ampere 9 Plaene Villa Ampere 10 Plaene Villa Ampere 11 Plaene Villa Ampere 12
Die Pläne zur Villa Ampere
Pläne: Hans Zachai, 2014

Nachdem der Kauf beurkundet war, wurden die Pläne der Stadt Leipheim vorgelegt. Der Leipheimer Bürgermeister und der Bauamtsleiter teilten unsere Begeisterung und stimmten unbürokratisch den Änderungsmaßnahmen zu. Auch unser direkter Nachbar war sofort einverstanden. Verwandte, Freunde und Bekannte signalisierten die Mithilfe beim Umbau. Besonders zu erwähnen ist dabei unser Onkel, Herr Anton Maier, der uns zukünftig mit seiner Erfahrung und seinen Ideen als Bauleiter zur Seite stand. Der Umbau konnte beginnen!

Ende April 2014 wurde bereits die neue Eingangstür eingebaut, der Putz im Sockelbereich entfernt, rings um das Gebäude der Boden bis auf 40 cm ausgehoben und wieder mit Schotter verfüllt und verdichtet, und die alten Pflastersteine aus dem ehemaligen Fliegerhorst verlegt. Dabei bemerkten wir das erste Mal, wie stabil das Gebäude gebaut war und wie viele dicke Leerrohre aus Eisen für die Stromleitungen in den Wänden versteckt waren. Als nächstes wurden die Löcher für die Fenster und die Balkontür im 1. OG ausgebrochen, Segmentbögen gemauert (was sich als Laie beim Mauern als gar nicht so einfach herausstellte), Fenster neu gesetzt und sofort innen wieder verputzt.

Umbau Villa Ampere 9 Umbau Villa Ampere 10 Umbau Villa Ampere 12 Umbau Villa Ampere 13 Umbau Villa Ampere 14 Umbau Villa Ampere 16
Der Umbau beginnt am 29. April 2014
Fotos: Hans Zachai, April/Mai 2014
Nachdem dann die Zwischendecke (Balkendecke) am 16. Juni eingebaut war, konnten auch die Fenster im 2. OG gesetzt werden. Nicht einkalkuliert hatten wir dabei das Vorhandensein eines Ringankers von ca. 100 cm Höhe aus Beton. An diesem Ringanker waren sämtliche abgehenden Stromleitungen mit starken Eisenhaken befestigt und gespannt, deshalb die stabile Ausführung. Aber es half ja nichts, das Loch für das Fenster musste ausgebrochen werden, wenn auch sehr mühevoll.

Umbau Villa Ampere 17 Umbau Villa Ampere 19 Umbau Villa Ampere 20 Umbau Villa Ampere 21 Umbau Villa Ampere 22
Umbau Villa Ampere 23 Umbau Villa Ampere 24 Umbau Villa Ampere 25 Umbau Villa Ampere 26 Umbau Villa Ampere 28 Umbau Villa Ampere 29 Umbau Villa Ampere 35 Umbau Villa Ampere 39
Die Baustelle im Juni
Fotos: Hans Zachai, Juni 2014
Bevor es nun innen weiter gehen sollte, hatten wir uns die Renovierung außen vorgenommen. Dafür war aber ein Gerüst erforderlich. Wiederum hatten wir Glück, ein befreundetes Zimmereiunternehmen war bereit uns ein Gerüst zur Verfügung zu stellen. Am Samstag, den 28. Juni 2014, wurde dann das Gerüst zusammen mit Freunden aufgebaut. Mühevoll wurde der alte Putz abgeschlagen, der Schutt entsorgt, die sog. Schweinshaken (daran waren die abgehenden Stromleitungen gespannt) entfernt, der Galgen am Giebel befestigt und das Dach in luftiger Höhe gereinigt. Zudem mussten einige Löcher (z. B. ehemalige Lüftungsschlitze) zugemauert werden. Ein Nachbar aus der Wissmannstraße, der Erfahrung beim Mauern hat, war uns dabei freundlicherweise behilflich.
 
Umbau Villa Ampere 57 Umbau Villa Ampere 53 Umbau Villa Ampere 55 Umbau Villa Ampere 52 Umbau Villa Ampere 51
Isolatoren
Fotos: Hans Zachai, 24. Juli 2014
Zu jeder Turmstation gehören Isolatoren, an denen die früheren Freileitungen an der Turmwand abgespannt waren. Um nach außen die ehemalige Funktion des Turmes zu demonstrieren, wollten wir ein paar alte Isolatoren anbringen. Wir machten uns im Internet auf die Suche. Dabei sind wir auf die Seite www.trafoturm.eu gestoßen, auf der bereits sehr viele alte Trafohäuschen dokumentiert sind. Herr Pit Fischer als Administrator der Seite war sofort Feuer und Flamme von unseren bisherigen Arbeiten und war uns gerne bei der Suche nach alten Isolatoren behilflich. Die Empfehlung sich an die Elektrizitätswerke zu wenden, stammt von einem Mitarbeiter der Trafohäuschen-Homepage-Redaktion. Also nichts wie los! Gemeinsam mit Anton fuhren wir nach Langenau in die Bezirksstelle der EnBW und wurden fündig. Aus einem Container konnten wir einige ausrangierte Isolatoren aus Keramik sowie Abdeckhauben von Dachständern aus Glas mitnehmen. Wir hatten nun verschiedene Isolatoren-Typen zur Auswahl, darunter auch Abspanneier für Niederspannung, wie sie in der Spätphase an der Station zu finden waren (Foto ganz links). Die großen braunen Delta-Isolatoren aus Keramik (Fotos rechts) haben uns besonders gut gefallen. Isolatoren dieses Typs waren niemals am Turm, aber sie geben mindestens einen anschaulichen Hinweis auf die frühere Funktion des Gebäudes. Jeweils zwei dieser Isolatoren wurden dann an zwei Seiten der Turms befestigt.
Anmerkung der Trafohäuschen-Homepage-Redaktion:
Die braunen hier zur Anwendung gekommenen Isolatoren sind sog. Deltaisolatoren (für Mittelspannung 20 KV), die nicht von einer Turmstation, sondern von Strommasten stammen. Die Metallbügel waren ursprünglich durch die Holzmasten gesteckt und auf der Gegenseite wieder verschraubt. Statt der zwei an der Turmwand angebrachten Isolatoren hätten es eigentlich drei nebeneinanderliegende sein müssen für die ankommende Mittelspannungs-Trasse, um die Situation elektrotechnisch richtig zu gestalten. Aber anschaulich und vor allem dekorativ sind sie allemal :-)

Auch die gläsernen Dachständer-Abdeckkappen sollten später als originelle Accessoires zum Einsatz kommen (siehe unten).

 
Umbau Villa Ampere 56 Umbau Villa Ampere 133
Alte Elektrobauteile als zukünftige Deko
Fotos: Hans Zachai, 24. Juli 2014
Der äußerst freundliche Mitarbeiter in der Bezirksstelle Langenau der EnBW, der uns die Isolatoren überließ, war sogar bereit sich auf die Suche nach anderen alten Elektroteilen aus alten Trafostationen zu machen. Nach einiger Zeit konnte er uns ein Amperemessgerät, zwei alte Stromzähler, einen Voltmesser und einen Widerstandmesser bescheren, die wir als Deko am und im Turm verwenden konnten - passend zum Thema Stromgeschichte (siehe unten). Diese Drehspulmesswerke waren ursprünglich für die Montage auf Schalttafeln gedacht.

Umbau Villa Ampere 59 Umbau Villa Ampere 61 Umbau Villa Ampere 63 Umbau Villa Ampere 64 Umbau Villa Ampere 67 Umbau Villa Ampere 68
Elektroinstallation
Fotos: Hans Zachai, 26. Juli 2014
Bevor nun mit den Außenputzarbeiten begonnen werden konnte, haben uns private Gründe und das Regenwetter einen Strich durch die Rechnung gemacht. Kein Problem für uns, dann wurde einfach mit den Innenarbeiten weiter gemacht. Die Elektroinstallation war der nächste Schritt. Dafür mussten Schlitze geschlagen werden (die schmutzigste, staubigste Arbeit überhaupt!), Leerrohre verlegt und Leerdosen gesetzt werden. Das Material hierfür und die entsprechenden Maschinen bekamen wir von unserem Elektriker, Herrn Mussotter. Den Verteilerkasten hatten wir ja bereits aus den ehemaligen Kasernengebäuden auf dem Fliegerhorstareal ausgebaut. Unterstützung, besonders beim Verlegen und Einputzen der Leerrohre, bekam ich von meinem Bruder Reinhard.

Umbau Villa Ampere 69 Umbau Villa Ampere 71 Umbau Villa Ampere 73 Umbau Villa Ampere 76 Umbau Villa Ampere 77 Umbau Villa Ampere 79 Umbau Villa Ampere 80 Umbau Villa Ampere 81
Umbau-Endphase: Verputzen und Streichen
Fotos: Hans Zachai, 29. Juli - 15. August 2014
Jeder Regen hat einmal ein Ende und so konnten am 21. Juli die Außenputzarbeiten beginnen. Alexander und ich als Hilfsarbeiter arbeiteten in den nächsten 14 Tagen zusammen. Eckschienen wurden gesetzt, Sockelschienen angebracht, Fenster und Türen mit Folie zugeklebt, Grundputz aufgetragen und gehobelt, Sockel und Fensterlaibungen verputzt, Bündchen abgedeckt und zum Schluss der Edelputz angebracht. Zwischendurch ist dann ein Schlauch an der Putzmaschine geplatzt und die Maschine musste repariert werden. Aber das Ergebnis ist überwältigend und ich habe wieder mal einiges dazu gelernt. Jetzt noch streichen und die Außenfassade war fertig. Für die Fassade hatten wir uns für ein Weiß mit leichtem Grauton und für die Bündchen und den Sockel für das gleiche Schilfgrün wie die Eingangstür entschieden. In einer Gemeinschaftsaktion, Anton Maier, Stefan Sket, meine Frau Sigrid und ich, wurde diese Arbeit innerhalb 2 Tagen erledigt, damit dann endlich das Gerüst wieder abgebaut werden konnte. Alle waren glücklich die Zeit des Gerüstes ohne Unfall überstanden zu haben.
Am 12. August wurde das Gerüst abgebaut. Beim Abtransport am 18. August war dann Herr Alfred Zey und sein Sohn Jakob behilflich.


Nun konnten wir erstmals das Ergebnis begutachten:

Umbau Villa Ampere 82 Umbau Villa Ampere 84 Umbau Villa Ampere 86 Umbau Villa Ampere 87 Umbau Villa Ampere 89 Umbau Villa Ampere 90 Umbau Villa Ampere 92 Umbau Villa Ampere 124
Die fast fertige Villa Ampere - bei Nacht und bei Tag
Fotos: Hans Zachai, 31. August - 2. September 2014
Besonders die Ansicht bei Nacht ist beeindruckend: aus den Fenstern schimmert dämonisch grünes Licht und betont die auch im 21. Jahrhundert noch etwas geheimnisvoll wirkende Kraft des elektrischen Stroms. Man kann ihn fühlen, z.B. an einem Weidezaun, aber nicht sehen (bei höheren Spannungen wird vor Anfassen allerdings gewarnt!!). Erst durch den Anschluss eines Leuchtmittels, z.B. einer Glühbirne oder einer grünen Leuchtstoffröhre wird die Energie sichtbar.

Umbau Villa Ampere 97 Umbau Villa Ampere 98 Umbau Villa Ampere 99 Umbau Villa Ampere 100 Umbau Villa Ampere 118 Umbau Villa Ampere 119 Umbau Villa Ampere 111
Umbau Villa Ampere 103 Umbau Villa Ampere 106 Umbau Villa Ampere 107 Umbau Villa Ampere 110 Umbau Villa Ampere 115 Umbau Villa Ampere 126 Umbau Villa Ampere 128
Restliche Innenarbeiten, im 1. OG wird der Parkettboden gelegt
Fotos: Hans Zachai, 1./2. September 2014
Der Endspurt begann! Ich hatte mir als Termin für die Fertigstellung den 31. August gesetzt. Die Innenwände wurden verputzt (dabei kam mir die Erfahrung mit Alexander bei den Aussenputzarbeiten sehr zu gute), die Drähte für den Elektroanschluss wurden eingezogen und alles angeschlossen, die Wände gestrichen und der Bretterboden verlegt. Ohne die Unterstützung durch meine Frau Sigrid, insbesondere beim Innenausbau, beim Streichen und beim Einrichten, wäre das allerdings nicht zu schaffen gewesen.
Was war mit der Inneneinrichtung? Uns fehlten noch ein großer Tisch und zwei Sitzbänke für den Aufenthaltsraum. Den Tisch (alter dunkler Holztisch mit Massivholzplatte und vier Füßen) haben wir bei Ebay gefunden und in München abgeholt. Die dunkle Platte sollte bleiben und das Untergestell und die Füße weiß werden. Entsprechend wollten wir dazu Bänke haben. Spontan hat sich mein Schwager Hermann Müller als Schreiner bereit erkärt, für uns solche Bänke anzufertigen. Unsere Tante Anna Maier brachte uns dann auf die fantastische Idee, auch die Zwischendecke und die Treppe vom 1. OG ins 2. OG in der Farbe Weiß zu streichen, damit das Ganze eine runde Sache wird.

 
Umbau Villa Ampere 102 Umbau Villa Ampere 102a Umbau Villa Ampere 54 Umbau Villa Ampere 121 Umbau Villa Ampere 136 Umbau Villa Ampere 121a
Lampen und Deko aus Glasisolatoren - angewandtes Recycling
Fotos: Hans Zachai, 1. September 2014
Zum Schluß wurden dann noch Aussenlampen von Dieter gefertigt, die Treppen eingebaut und der Boden des Erdgeschosses gestrichen. Aus den ausgedienten von Dachständern stammenden Glasabdeckkappen, die uns der freundliche Mann von der EnBW-Bezirksstelle überlassen hatte, wurden so hübsche und thematisch passende Lampen rechts und links von der Tür. Gläserne N95 Rillentellerisolatoren dienen nun als Garderobenhaken (Fotos links).
Anmerkung der Trafohäuschen-Homepage-Redaktion:
Wieder ein schönes Beispiel mehr, wie mit etwas Kreativität und Basteltalent aus Armaturen, die sonst im Müll gelandet wären, schöne und sinnvolle Gebrauchsgegenstände entstehen können, siehe unser Kapitel Recycling von Isolatoren.

 
Umbau Villa Ampere 135 Umbau Villa Ampere 168 Umbau Villa Ampere 173 Umbau Villa Ampere 180 Umbau Villa Ampere 181
Alte Elektroteile als Deko
Fotos: Hans Zachai, September 2014
Überraschenderweise kam dann noch ein Anruf von der Bezirksstelle Langenau der EnBW, mit dem Hinweis, dass einige alte Elektroteile für uns bereit stehen. Wir konnten also als Deko aussen noch ein Amperemessgerät und innen zwei alte Stromzähler, einen Voltmesser und einen Widerstandmesser anbringen. Diese Drehspulmesswerke waren ursprünglich für die Montage auf Schalttafeln gedacht.
Bilder von links nach rechts:
Amperemeter außen, Widerstandsmesser 1. OG, Amperemeter 2. OG, alte Zähler im EG


Am 15. September 2014 können wir endgültig behaupten: die Renovierung ist abgeschlossen!

Umbau Villa Ampere 138 Umbau Villa Ampere 141 Umbau Villa Ampere 132 Umbau Villa Ampere 143 Umbau Villa Ampere 144 Umbau Villa Ampere 145 Umbau Villa Ampere 95
Umbau Villa Ampere 146 Umbau Villa Ampere 147 Umbau Villa Ampere 148
Die fertige Villa Ampere
Fotos: Hans Zachai, September 2014
Obere Reihe von links nach rechts:
Bild 1-3: Außenansicht Nord, mit Kunstobjekt
Bild 4-5: Außenansicht Ost
Bild 6-7: Schild Villa Ampere und Infotafel
Untere Reihe von links nach rechts:
Bild 1-2: Außenansicht Süd
Bild 3: Außenansicht West

 
Besichtigung der fertigen Villa Ampere durch alle drei Stockwerke

Umbau Villa Ampere 179 Umbau Villa Ampere 182 Umbau Villa Ampere 183 Umbau Villa Ampere 184
Das Erdgeschoss
Fotos: Hans Zachai, September 2014
Folgen wir nun dem Turmherrn bei der Besichtigung der Villa. Im Erdgeschoss kamen früher unterirdisch die Hochspannungskabel an (Mittelspannung, 20.000 Volt), die hier noch zu sehen sind. Eine Treppe führt hinauf in den ersten Stock.

Umbau Villa Ampere 149 Umbau Villa Ampere 151 Umbau Villa Ampere 152 Umbau Villa Ampere 153 Umbau Villa Ampere 155 Umbau Villa Ampere 156 Umbau Villa Ampere 157 Umbau Villa Ampere 158
Umbau Villa Ampere 159 Umbau Villa Ampere 160 Umbau Villa Ampere 161 Umbau Villa Ampere 168 Umbau Villa Ampere 163 Umbau Villa Ampere 164 Umbau Villa Ampere 166 Umbau Villa Ampere 167 Umbau Villa Ampere 162
Das erste Stockwerk
Fotos: Hans Zachai, September 2014
Auf den Fotos sehen wir den Tisch mit zwei Bänken, den Abgang zum Erdgeschoss, ein Aussichtsfenster nach Süden, die Balkendecke mit grüner LED-Beleuchtung und einige Infotafeln mit Informationen zum Stromnetz.
In der unteren Bildreihe ist auf dem Foto ganz links ein Amperemeter zu sehen, auf dem dritten Bild von links ein Schwerlastdübel. Das vierte Bild von links zeigt einen Widerstandsmesser. Ein Seil und ein tragbares Volt-Ampere-Messgerät finden wir unter der Treppe zum 2. OG auf den Fotos ganz rechts, aufgehängt an umfunktionierten ehemaligen Glasisolatoren.
Auf dem Tisch steht original Villa-Ampere-Wein, zum Wohl :-)


Umbau Villa Ampere 169 Umbau Villa Ampere 170 Umbau Villa Ampere 171 Umbau Villa Ampere 178 Umbau Villa Ampere 173 Umbau Villa Ampere 172 Umbau Villa Ampere 177
Umbau Villa Ampere 174 Umbau Villa Ampere 175
Das zweite Stockwerk
Fotos: Hans Zachai, September 2014
Im zweiten Stock ist der Original-Bauplan der Trafostation vom 2. März 1954 aufgehängt. Wir finden hier eine gemütliche Sitzecke vor, sowie den Treppenabgang zum ersten Stock hinunter. Darüber ist ein alter Widerstandsmesser und ein Amperemeter zu sehen. In der unteren Reihe die Aussicht nach Süden und Norden. Sogar an allzu menschliche Bedürfnisse wurde gedacht: das Foto rechts oben zeigt den Nachttopf :-)

Villa Ampere 196 Villa Ampere 185 Villa Ampere 186 Villa Ampere 194 Villa Ampere 189 Villa Ampere 190 Villa Ampere 195
Adventsbilder 2014
Fotos: Hans Zachai, 20. Dezember 2014
Einige stimmungsvolle Aufnahmen aus der Vorweihnachtszeit

 
Pressestimmen und Links zur Villa Ampere

Homepage der Villa Ampere: Kreativ-Meeting-Point Villa Ampere

Wie aus einem alten Trafoturm die Villa Ampere wurde
Artikel in der Günzburger Zeitung vom 28.10.2014 von Manuela Antosch
"Hans Zachai hat sich zusammen mit vielen Helfern in Leipheim ein gemütliches Turmstüberl geschaffen. Viele Gegenstände erinnern noch an ursprüngliche Aufgaben des Gebäudes.
(...)
Vor kurzem durfte Hans Zachai den Turm neben seinem Garten noch gar nicht betreten - das wäre lebensgefährlich gewesen. Heute verbringt er viel Zeit darin, genießt die Ruhe und den Ausblick, macht ab und zu unterm Dach sein Mittagsschläfchen. Der Turm war einmal ein Trafoturm der EnBW, gebaut 1954. Hochspannungsleitungen waren dort angeschlossen, gesichert durch eine schwere Stahltür. Der Putz war schon an vielen Stellen abgebröckelt, der Turm wenig ansehnlich. Hans Zachai hat er trotzdem schon immer fasziniert, seit er 2007 in die Leipheimer Wissmannstraße gezogen ist.
Dann kam seine Chance: Ende 2013 erfuhr Zachai, dass der Turm abgerissen werden soll. Der Leipheimer war schneller: Er verhandelte mit dem Energiekonzern, kaufte den Turm und legte los. Die Formalia mit der Stadt und dem Unternehmen waren recht schnell erledigt. Die Leitungen verliefen da schon lange unter der Erde.
Zusammen mit vielen Helfern hat Hans Zachai dann diesen Sommer und Herbst viele Stunden und Tage lang den Turm saniert. Sie zogen Decken ein, verputzten und strichen ihn neu. Ein halbes Jahr nach dem Kauf ist der Turm nun kaum mehr wieder zu erkennen. Und einen neuen Namen hat er auch: Villa Ampere, zu lesen auf einem hübschen Café-Schild, das Hans Zachai für acht Euro auf dem Flohmarkt gekauft und neu gestaltet hat. Überhaupt stecken ganz viele wiederverwendete Dinge und viele Stunden Eigenarbeit in dem Turm. Und etwa 5000 Euro.
(...)
Wer die schmalen steilen Treppenstufen in den ersten Stock hinauf steigt, der kommt in das drei mal drei Meter große Turmzimmer, wo sich regelmäßig eine Schafkopfrunde trifft. Bis zu acht Leute haben an dem Holztisch Platz, Zachai kann sich dort auch kleine Konferenzen vorstellen. "Wer mal eine kreative Arbeitsumgebung braucht, der kann sich bei mir melden", meint er großzügig. Nur verpflegen müssten sich die Gäste selbst.
Im zweiten Stock wird es dann noch gemütlicher: Dort steht eine Schlafcouch. Beide Räume sind durch farbige LEDs indirekt beleuchtet, ein Elektroofen macht warm. Nur eines gibt es hier nicht: Medien. Keinen Fernseher, kein Radio, kein Telefon. Die Villa Ampere soll ein Rückzugsort sein. Unter Strom stand sie schließlich lange genug."
- > Der vollständige Artikel in der Günzburger Zeitung online



Schlusswort
Unser besonderer Dank gilt allen Mithelfern, Unterstützern, Entscheidungsträgern und Betroffenen. Es hat sich wieder einmal gezeigt, wie wertvoll Freunde sind, wie durch Beharrlichkeit Probleme zu meistern sind und welche Kräfte Begeisterung auslösen kann. Allen zukünftigen Gästen in der Villa Ampere wünschen wir einen angenehmen, inspirierenden Aufenthalt.


Namentlich zu nennende Mithelfer und Unterstützer:
Herr Anton Maier, Frau Anna Maier, Herr Dieter Ley (Fa. Ley Metallbau, Leipheim), Herr Alexander Fehnle, Herr Stefan Sket, Herr Jakob Wiedenmann, Herr Walter Binder, Herr Joe Weiser (Fa. Weiser Siebdruck, Leipheim), Herr Walter Lochbrunner (Zimmerei Lochbrunner, Günzburg), Herr Christian Konrad (Bürgermeister Stadt Leipheim), Herr Jürgen Mössle (Bauamtsleiter Stadt Leipheim), Herr und Frau Wanzl (Nachbarn), Herr Thomas Mack (Zweckverband Interkommunales Gewerbegebiet Landkreis Günzburg), Herr Werner Mussotter, Herr Reinhard Zachai, Herr Alfred Zey, Herr Jakob Zey, Herr Fabian Hausmann, Herr Pit Fischer, Herr von der EnbW ODR Langenau, Frau Ines Zachai, Herr Andreas Zachai, Frau Sigrid Zachai
Texte: Hans Zachai, 2014
Die noch ausführlichere vollständige Geschichte der Villa Ampere gibt es als PDF-Datei:
Hans Zachai: Villa Ampere
Die Texte auf dieser Seite sind gekürzte Auszüge aus dieser PDF-Datei, leicht überarbeitet und ergänzt durch Pit Fischer von der Trafohäuschen-Homepage-Redaktion.


Glückwunsch
Die Trafohäuschen-Homepage-Redaktion gratuliert dem Turmherrn, allen Helfer und Helferinnen und Beteiligten zu diesem überaus gelungenen Werk.
Viel Glück und Entspannung in der Villa Ampere!



 
Dieser Trafoturm als Modell im Maßstab 1:160 (Spurgröße N) für 3d-Druck

Die Druckdateien, um das Modell im 3d-Druck herstellen zu können, befinden sich auf der freien Datenbank Thingiverse und können von jedem kostenlos heruntergeladen werden:
https://www.thingiverse.com/thing:3323144


© Copyright für die Bilder
bei den Fotografen und Fotografinnen

Zurück zur
Trafographie Startseite
Startseite Trafographie
Stand: 6. Januar 2015
Carpe diem

Atomkraft nein danke